Casa 2 dormitorios Tradicional a estrenar Pinares

22 Pinares, Punta del Este

U$S 210.000

Dormitorios 2 Dormitorios
Baños 2 Baños
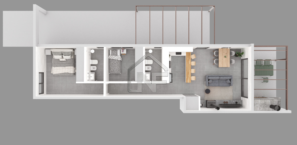
Superficie Edificado 80 m2
Superficie de Terreno 300 m2

Descripción

Casa 2 dormitorios Tradicional a estrenar Pinares
Casa 2 Dormitorios a Estrenar
Entrega Mayo 2026

Barrio: Jardines de Pinares – Barrio moderno en pleno crecimiento cerca de servicios y playa Mansa Parada 27

En una de las zonas con mayor proyección de Punta del Este, ideal para vivienda permanente o inversión.

Características destacadas

2 dormitorios
Construcción tradicional en ladrillo visto
Excelente calidad constructiva y durabilidad
Diseño moderno y funcional

Equipamiento incluido

Anafe
Campana extractora
Estufa de alto rendimiento
Aires acondicionados instalados
Detalles constructivos
Aberturas negras en DVH (doble vidrio hermético)
Muy buen aislamiento térmico y acústico

Espacios exteriores

Barbacoa propia, ideal para disfrutar todo el año
Pergola para el Auto

Entorno tranquilo, residencial, con rápida valorización y excelente conectividad a servicios y zonas principales.

Detalles de la Propiedad

  • Barrio Pinares
  • Vista Al Bosque
  • Orientacion NorOeste
  • Distancia al Mar 600
  • Terreno m2 300
  • Edificado m2 80
  • Dormitorios 2
  • Baños 2
  • Suites 1
  • Cocina Amplia
  • Living Si
  • Comedor Si
  • Living Comedor Si
  • Comedor Diario Si
  • Capacidad Personas 4
  • Lavadero Si
  • Estufa Leña Si
  • Cochera Cochera
  • Estacionamiento Estacionamiento
  • Cantidad de Plantas 1
  • Propiedad Horizontal Si
  • Parrillero Barbacoa
  • Tipo de Techo Isopanel
  • Muebles No

Equipamiento

  • Anafe
  • Placard en cocina
  • Campana
  • Horno

Gastos y Impuestos